| NIVEAU | PIÈCE | SURFACE |
Appartement
EAUNES (31600)
- 38 m²
- 2 pièce(s)
- 1 chambre(s)
- NC
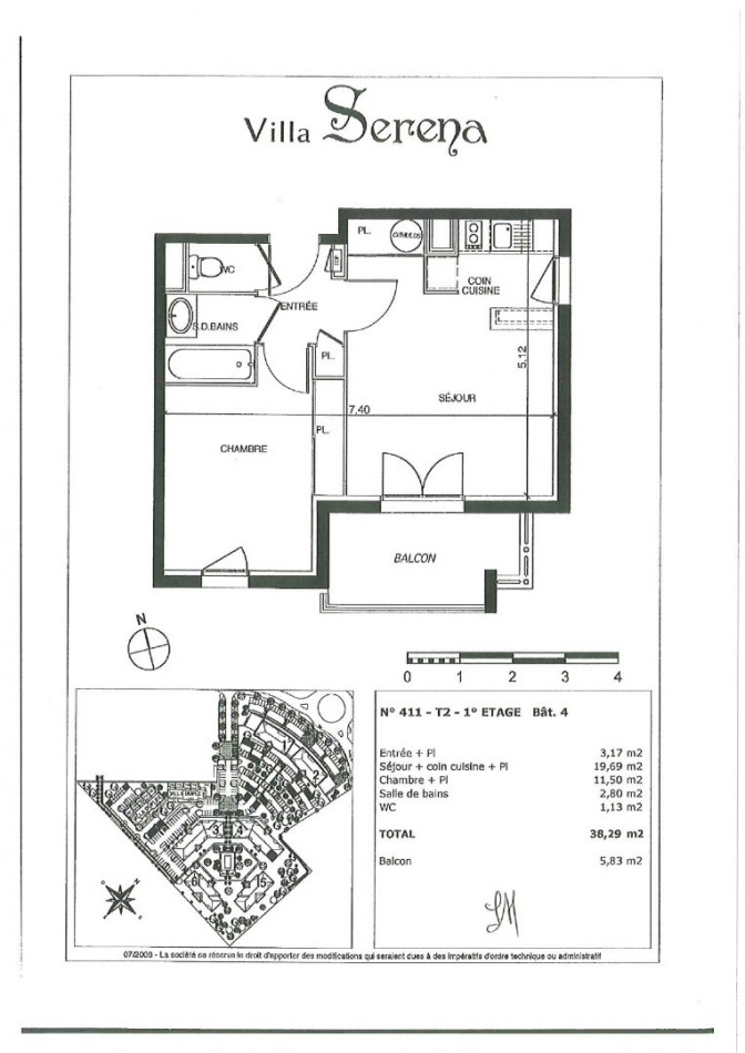
EXCLUSIVITE : EAUNES - T2 AVEC BALCON DE 5.83M² ET 2 PARKINGS
Situé à 5 minutes en voiture de la commune de Muret, dans la résidence sécurisée et arborée "Villa Serena" avec piscine, proche de toutes commodités ( écoles, commerces de proximité...), à 10 minutes de l'accès à l'A64, et à 3 minutes à pied d'un arrêt de bus, nous vous présentons ce bel appartement au 1er et dernier étage de 38.29m², comprenant un balcon et 2 places de stationnement extérieures. Ce bien se compose d'une entrée avec placard, d'une cuisine équipée ouverte sur la pièce de vie lumineuse menant au balcon de 5.83m², d'une chambre avec placard de rangement, d'une salle de bain avec vasque et d'un WC séparé. Résidence calme, avec piscine réservée aux occupants. Chauffage électrique, double vitrage et fibre optique installée. Idéal investisseur !
Vendu loué à 478€ Hors charges
Prix 117 000€ FAI (dont 7 020€ TTC d'honoraires à la charge du vendeur).
* Honoraires charge vendeur.

Montant estimé des dépenses annuelles d'énergie pour un usage standard: entre 530,00€ et 760,00€ par an.
Prix moyen des énergies indexés au 27/04/2024 (abonnement compris)
cette annonce à un ami
Veuillez réessayer à nouveau




















