| NIVEAU | PIÈCE | SURFACE |
Appartement
TOULOUSE (31300)
- 62 m²
- 3 pièce(s)
- 2 chambre(s)
- NC
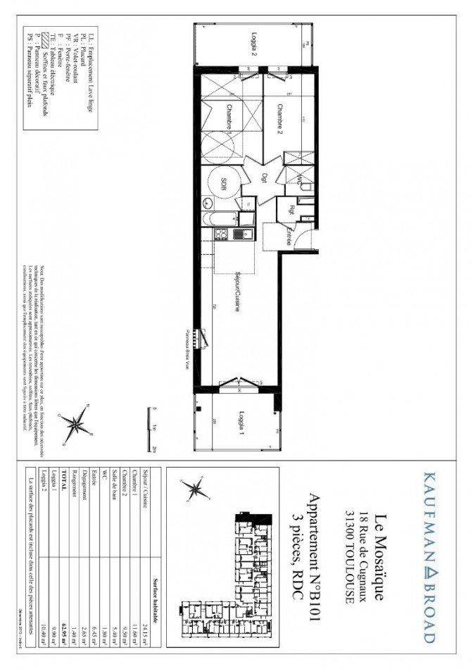
EXCLUSIVITE : TOULOUSE-RUE DE CUGNAUX - T3 en RDC INTERIEUR AVEC 2 BELLES LOGGIAS de 20 m2 ET PARKING SOUS-SOL
Située 18 rue de Cugnaux, la résidence "LE MOSAÏQUE" est proche des transports en commun (Bus au pied de la résidence, Tramway et métro des ARENES), ainsi que des commodités (commerces, clinique, collège-lycée) et à 2 pas de l'hyper centre. Dans cette belle résidence aux normes BBC, vous y trouverez un appartement T3 de 62.95 m2, bénéficiant d'une double exposition donnant sur l' intérieur de la résidence.
Il se compose : d'une entrée avec ensemble penderie/étagères, d'une cuisine équipée et meublée (meubles hauts et bas, évier, plan de travail, plaque de cuisson vitrocéramique 4 feux, hotte, emplacements frigo), ouverte sur la pièce de vie. Celle-ci, très facile à agencer, donne accès à une belle loggias de 9.90m². Deux belles chambres donnent également accès à une loggia de 10.4m2. Le logement est doté d'une salle de bain, munie d'une baignoire, meuble sous vasque et miroir lumineux, d'un WC indépendant et de rangements, ainsi que d'une place de parking en sous-sol..
Mode de production de chauffage et eau : gaz collectif
Vendu LIBRE D'OCCUPATION
Prix : 219 000€ FAI (dont 13 140€ TTC d'honoriares à la charge du vendeur)
* Honoraires charge vendeur.

Montant estimé des dépenses annuelles d'énergie pour un usage standard: entre 470,00€ et 680,00€ par an.Prix moyens des énergies indexés sur les années 2021, 2022 et 2023 (abonnement compris)
cette annonce à un ami
Veuillez réessayer à nouveau




















